1階平面図

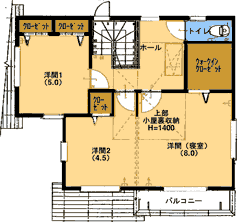
2階平面図
●建物概要●
1階面積
  53.82
2階面積
  47.20
延床面積
 101.02 (30.55坪)
建築面積
  56.31
敷地面積
 166.35 (50.32坪)

・小屋裏収納有 ・オール電化
・駐車場2台可 ・公道6.0m
・第1種低層住居専用地域 (50/80)


※詳しい情報は下記資料請求からお尋ね下さい。
   
問合せ
戻 る
 
インターデコハウス